Beschrijving

Sfeervol dertigerjaren woonhuis aan de Strick van Linschotenstraat 4 in Beverwijk!
Wonen in gezellig Beverwijk, wie wil dat nu niet? Dit gezinsvriendelijke woonhuis aan de Strick van Linschotenstraat 4 is precies wat jouw familie nodig heeft. Het bouwjaar van 1933 geeft dit huis karakter en flair, perfect voor diegenen die op zoek zijn naar een beetje nostalgie gecombineerd met modern comfort. De ligging is ook heel fijn. Net uit de drukte van het centrum, maar toch met alle voorzieningen op loopafstand. Het centrum van Beverwijk is om de hoek gelegen en voor de dagelijkse boodschappen kun je uitwijken naar de Beverhof of de Plantage. Het is een kinderrijke buurt met diverse speelplekjes, basisscholen en kinderopvang in de buurt. Het NS-station is met 5 minuten fietsen te bereiken en ook de uitvalswegen naar Alkmaar, Haarlem en Amsterdam zijn dichtbij. 

Deze charmante tussenwoning heeft zowel een voortuin als een achtertuin, waardoor je optimaal van de buitenlucht kunt genieten. Stel je voor: zomerse barbecues in de tuin met familie en vrienden, of gewoon lekker ontspannen in je eigen groene oase in de drukte van alledag. De kinderen hebben alle ruimte om te spelen terwijl jij geniet van een welverdiend moment van rust.
Met een energielabel C is deze woning niet alleen warm en knus, maar ook nog eens energiezuinig. Zo blijven de energierekeningen betaalbaar en kun je met een gerust hart genieten van een comfortabel binnenklimaat.

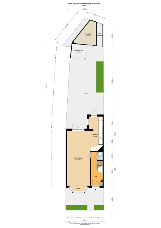
Indeling

Begane grond: via de ruime hal met meterkast, die in 2021 vernieuwd is, kom je in de gang met toilet en loop je zo door naar de gezellige woonkamer met erker en openslaande deuren naar de tuin. De woning is geheel voorzien van dubbel glas, behalve het glas in lood in het erker. Het glas in lood maakt de woonkamer natuurlijk heel sfeervol. De open keuken is voorzien van inbouwapparatuur, zoals een over een vaatwasser, een afzuigkap en veel kastruimte. De tuin is gelegen op het zuidwesten, waardoor je de hele dag lekker kan genieten van de zon. De tuin is voorzien van een fijne stenen berging en een achterom.

Eerste verdieping

Op de eerste verdieping bevinden zich 3 slaapkamers (2 grote en 1 kleinere) en een badkamer, die in 2024 vernieuwd is. De badkamer is voorzien van een heerlijke regendouche, een hangend toilet, een bad, een wastafelmeubel en een handdoekenradiator.

Tweede verdieping

De tweede verdieping is voorzien van een dakkapel aan de voorzijde en twee dakramen aan de achterzijde. Op het dak liggen 4 zonnepanelen. De tweede verdieping wordt nu gebruikt als werkruimte, maar kan ook prima als slaapkamer fungeren. Tevens is er een aparte ruimte voor de cv-ketel en de wasmachine.

Bijzonderheden

Goed om te weten;
- 4 zonnepanelen
- energielabel C
- Badkamer in 2024 vernieuwd
- Meterkast in 2021 vernieuwd
- Muurisolatie in 2022 aangebracht

Mis deze kans niet om jouw gezinsdroom te verwezenlijken in Beverwijk. Neem snel contact met ons op voor een bezichtiging en wie weet loop jij binnenkort door de voordeur van je nieuwe thuis aan de Strick van Linschotenstraat 4. Dit is jouw kans, grijp hem met beide handen aan!

Kenmerken